SCP Emmanuelle PORAL et Grégory VIALATTE
Notaires associés

Détail annonce

Annonce 7 sur 20
01 Ain
Druillat  
Maison
Vente

(Honoraires de négociation à la charge du vendeur)

Informations complémentaires

Nombre de pièces :
6
Nombre de chambres :
3
Surface habitable :
140 m2
Surface terrain :
5183 m²
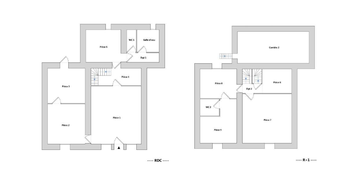
Située sur la commune de Druillat, cette maison de village d'environ 140 m² offre de beaux volumes et un fort potentiel, le tout sur un vaste terrain d'environ 5 000 m². La maison se compose, au rez-de-chaussée, d'une pièce de vie, d'une chambre, d'une pièce donnant accès au jardin, d'une cave, d'une salle d'eau ainsi que de WC séparés. À l'étage, un palier dessert trois chambres, dont deux en enfilade, ainsi que des WC. Au-dessus, des greniers viennent compléter l'ensemble. À l'extérieur, la propriété dispose d'un terrain d'environ 5 000 m², dont environ 1 400 m² situés en zone Ub et le reste en zone agricole. Un hangar d'environ 100 m² vient parfaire ce bien et ouvre de nombreuses possibilités (stockage, atelier, activité). Cette propriété offre de belles perspectives grâce à ses volumes, son terrain et ses dépendances. Des travaux importants sont à prévoir, laissant libre cours à vos envies pour créer une maison à votre image. Non soumis au DPE Les informations sur les risques auxquels ce bien est exposé sont disponibles sur le site Géorisques : www. georisques. gouv. fr
Ref.: 01031-1276

Prix : 180 000  €
(Honoraires de négociation à la charge du vendeur)

Diagnostic performances energétiques

Exempté DPE
SARL PORAL, VIALATTE & JUNIQUE, Notaires associés
39 av du Général de Gaulle 01500 Ambérieu-en-Bugey
Tél. : 04 74 34 37 43
Fax : 04.74.38.33.32
Email : negociation.01031@notaires.fr
Nº SIRET ou SIREN : 378 060 222 00023
 
Vous avez des questions à poser sur cette annonce ?
N'hésitez pas à contacter l'étude.
 
Merci de recopier les chiffres suivants pour contrôler l'envoi*.
Vos informations personnelles (nom, prénom, email, téléphone, commentaire) sont collectées avec votre consentement et sont destinées à SARL PORAL, VIALATTE & JUNIQUE, Notaires associés en sa qualité de responsable du traitement. Ces informations sont collectées afin de répondre à votre demande de contact ou de renseignements. Ces informations ne sont pas stockées dans une base de données, elles sont uniquement transférées par email à SARL PORAL, VIALATTE & JUNIQUE, Notaires associés qui se chargera de supprimer ce dernier après avoir entièrement traité votre demande ou votre dossier.
Conformément à la loi "informatique et libertés" et au RGPD, vous pouvez exercer vos droits d'opposition, d'accès, de rectification, d'effacement, de limitation et de portabilité en effectuant une demande à l'adresse suivante : cil@notaires.fr. Vous pouvez également adresser une réclamation auprès de la CNIL directement via son site internet https://www.cnil.fr.

MEDIATION : En cas de litige non résolu avec un notaire, vous avez la possibilité de saisir le Médiateur du notariat à l'adresse suivante : mediateurdunotariat@notaires.fr, ou à 60 boulevard de la Tour Maubourg 75007 Paris afin de tenter, avec son aide, de trouver une résolution amiable au conflit. Plus d'informations sur : mediateur-notariat.notaires.fr.

* Le renseignement des champs marqués d'un astérisque est obligatoire en vue de valider votre demande. Les autres champs, non obligatoires, ont pour seul objectif de préciser votre demande et de mieux vous connaître.

** Nous vous informons de l'existence de la liste d'opposition au démarchage téléphonique "BLOCTEL" sur laquelle vous pouvez vous inscrire www.bloctel.gouv.fr.



Mentions légales